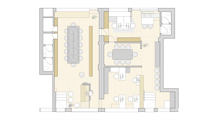
Desenho técnico · Planta

Arquitectura_1.html
Arquitectura_1.html

REMODELAÇÃO DE CARTÓRIO NOTARIAL

Espinho · Portugal

2019 / 2022


Área bruta de construção: 180 m²

ArquiteCturaArquitectura_1.html
UrbanismoUrbanismo.html
DesignDesign.html
ContactoContacto.html
Urbanismo.html
Design.html
Arquitectura_1.html
Desenho_1.html
Contacto.html
Sobre.html
DESENHODesenho_1.html
SOBRESobre.html
EN../en/Rehabilitation_Interior_Design_Espinho_Notarial_Office_of_Espinho.html
PT

Modelo digital 3D · Sala de atos principal

Fotografia da obra executada · Sala de trabalho

Esboço, base de desenvolvimento da solução que deu origem ao projeto final · tinta e lápis de cor sobre papel

Escrita.html
ESCRITAEscrita.html